产品主要用途
XGN17-40.5箱型固定式交流金属封闭开关设备是根据IEC 62271-200、GB 3906进行设计。本开关设备系三相交流50Hz单母线及单母线带旁路系统的户内成套装置,作为接受和分配35kV的网络电能之用。
产品型号的组成及含义
主要数据表
结构说明
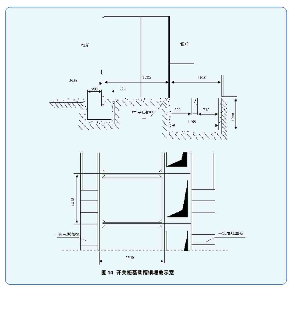
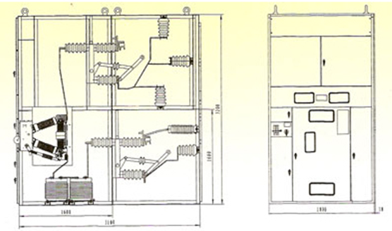
XGN17-40.5KV开关柜为固定式接装组合结构,其基本骨架均由型钢及钢板弯制件焊接而成,柜体外壳具有IP2X防护等级。 本开关设备主要由前柜和后柜拼装而成,接不同的用途设置相应的功能单元,柜内带电体间均以空气绝缘主为,各项带电体之间及相对地之间的绝缘距离不小于300mm,内部结构参见图1。
1、前柜 前柜设置了主母线及母线隔离开关室、断路器室、继电器室,主母线及母线隔离开关室在该柜上方,断路器室设置在该柜下方,该室还设置有电流互感器,两室间有绝缘板隔开,通过母线套管相连。 继电器设置在该柜正前面的中部,小母线端子共15节,并设有二线电缆通道,端子室设在左下小门内,可安装JH10型端子80以上,该室下方还设置有M12的接地螺栓供辅助回路接地之用,右小门为维修通道。端子室上方为操作面板,可装设辅助开关。 2、后柜 后柜用螺栓与前柜相连,该柜根据需要可设置旁路母线及隔离开关、架空进出线也由该柜通过,设置旁路母线时,架空进出线未达到安全高度,需增设小附或遮拦网。不设置旁母时,架空时出线可以从后柜顶部通过。该柜还可以安装电压互感器或避雷器,联络母线和电缆出线安装在此柜。后门有螺栓固定,若带电显示器提示没电,可打开后门,主母线室与后柜用隔板隔开。
一次线路方案
订货须知
订货时用户提供下列资料: 1、一次线路编号和一次系统图,并标明其额定电流。 2、二次线路原理图,如套用GG-1A型高压柜的129种直流操作标准方案(Z1~Z129)时应标明方案及控制回路电压值。 3、高压柜平面排列图。 4、如选用非标准一次方案,请在订货时提出,协商解决。 5、母线规范由订货提出,如不提出柜内支母排按本厂标准铝制作。 6、开关柜喷漆颜色。