KYN61-40.5KV开关柜(以下简称“开关设备”)其主要特点是柜内配用ZN85-40.5型新型全绝缘真空断路器及弹簧操动机构,柜体采用镀锌钢板组装而成,提高了手车与柜体的配合精度,手车推进拉出十分轻便,互换性强。本产品用于35kV三相交流50Hz JN电力系统中,作为发电厂、变电气及工矿企业的配电室接受与分配电能之用,具有控制、保护和监测功能。 本产品符合IEC 62271-200:2021/AMD1:2024、GB 3906-2020 等标准。
符号含义
使用条件
1.海拔高度:不超过2000米; 2.环境温度:上限为+40℃, 下限为-15℃; 3.相对湿度:日平均值不大于95%;月平均值不大于90%; 4.地震烈度:不超过8度; 5.没有火灾爆炸危险,没有剧烈震动及化学腐蚀等严惩污秽的场所。
产品结构
1.手车室 1.1良好的车 、柜滑动接地装置,确保人身和设备的安全; 1.2 轻便灵活的金属安全防护活门,随车进出而开闭并到位锁定; 1.3 手车进出采用丝杠摇进机构,轻巧、灵活; 1.4 可实现手车室大门关闭时对手车进行正常的推进、抽出及对断路器、接地开关进行正常合、分操作,以确保人身安全; 1.5 断路器,手车和摇进机构之间设有严格的防止误操作的机械闭锁装置。 2.手车室 2.1设有带关合能力的接地开关,采用锥齿轮传动,操作省力且自锁性能好; 2.2 柜体上下均可进出电缆,亦可实现上顶架空进出线; 2.3 电缆头的安装高度在850mm以上; 2.4 可按用户要求加设避雷器。 3.母线室 3.1采用矩形截面或管状绝缘母线; 3.2相邻柜间用穿墙套管隔开,限制故障电弧蔓延,避免事故扩大; 3.3母线接头套采用SMC材料加强了母线接头间的绝缘水平,使之更可靠。 4.二次仪表室 4.1内部采用网孔式安装板,便于各类继电器安装及更换; 4.2可采用综合微机保所设备实现监控系统的远程(后台)控制。 5.二次插头(座) 手车和柜体之间的辅助回路连接线是通过装于手车上的插头与装于柜体上的插座实现的,手车推入“试验位置”时将插头插入,使辅助回路投入工作。手车退至“试验位置”时将插头拔下,手车方可继续拉到柜外,插头的插接与手车具有联锁装置。 6.手车 6.1手车骨架由优质钢板折弯焊接而成,根据用途,手车可分为断路手车、熔断器手车、隔离手车、电压互感器手车和避雷器手车等,断路器采用国产ZN85-40.5(3AV3)真空断路器和法国施耐德SF1、SF2型及阿尔斯通FP系列六氟化硫断路器,具有外形美观、体积小、操作可靠性高、寿命长等特点,采用丝杠推进机构,省力平衡且自锁性能好。 6.2 ZN85-40.5(3AV3)断路器特点 6.2.1 断路器采用灭弧室在上,操动机构在下的整体布置结构,有利于调试; 6.2.2 采用空气与有机材料复合绝缘结构,设计紧凑重量轻; 6.2.3 可配美国Cutler-Hammer公司、西门子公司和国产真空灭弧室,三种灭弧室均可采用杯状纵磁场灭弧、低截流、非对称开断性能好,能满足不同用户的需求; 6.2.4 简单的弹簧操动机构,机械寿命10000次; 6.2.5 大爬距绝缘设计,绝缘筒内壁为伞裙结构,在污秽条件下运行性能稳定可靠。 6.3 SF2型六氟化硫断路器特点 6.3.1 灭弧铜内气体一次性密封,无需运行中途充气; 6.3.2 六氟化硫气体的年泄漏率小于0.1%; 6.3.3 机械寿命10000次,性能稳定可靠。 6.3.4 特别适用于投切电容器组。 7. 开关柜的“五防”联锁 7.1 防止带负荷推拉手车,断路器手车只有处在工作、试验或移开位置时才能进行分、合闸操作。断路器只有处在分闸位置时,手车才能从工作位置移出或从试验位置推进,可靠防止带负荷推拉手车; 7.2 防止误合、分断路器,接地开关合闸后手车摇进机构孔的活门解锁,才能把断路器手车从试验位置推入工作位置;断路器合闸后,摇进机构孔的活门不能打开,防止误合、误分断路器; 7.3 防止误入带电间隔,开关柜的后柜门采用机械或(和)电气联锁,只有当接地开关合闸后,并且后柜内相应设备已停电,开启电磁锁后才能打开后柜门。防止工作人员误入带电间隔; 开关柜手车拉出时,静触头盒外的金属大活门自动关闭,防止触有触头盒带电部分和绝缘(爬电)表面,以确保安全。 7.4 防止开关柜带电误合接地开关,只有将手车抽出到试验位置,并且出线侧也已停电后,接地开关操作孔的活门才能打开,允许关合接地开关; 7.5 防止接地开关合上时误送电,接地开关在关合位置时,手车横梁上的接地开关联锁杆不能向右拨动,手车摇进机构孔活门被锁住,手车不能摇进,防止接地开关合上时误送电; 7.6 不装接地开关的断路器柜,母线分段柜和母线设备柜等,还需要由相应的电磁锁(或程序锁)配合完成全部的防误功能,用户可能参照“KYN61-40.5”铠装移开式金属封闭开关设备联锁操作使用说明进行操作。 7.7 手车只有试验位置时方可插上或拔下二次插头,手车在工作位置时二次插头被锁定。 8. 储运 8.1 应检查包装好无损后方可拆箱,开箱后查验随机附件资料及主机是否完好; 8.2 开关柜应储存在清洁干燥无化学腐蚀的场所,长期存放应在传动部分涂润滑油,并定期检查环境是否符合要求。 9. 安装基础形式 9.1 开关柜的安装基础应符合“电力建设施工及验收技术规范”中的有关条款规定; 9.2 安装基础见示意图,框架安装的允许偏差为每米不大于1mm(用于下出线)。 10. 开关柜安装的一般要求 10.1 用特定的运输工具如吊车、叉车等,严禁使用滚筒橇棍; 10.2 从开关柜抽出手车另放别处妥善保管; 10.3 如果一排开关柜较长,拼柜应从中间开始; 10.4 柜内清洁后将推进丝杆、轴承及机械转动部位涂上干净的工业凡士林或润滑油,手车排列就位于相应柜内,查验动静触头的啮合深度及操作联锁的可靠性,动静触头插入深度为40± 0/2 mm。 11.开关柜接地装置 11.1 用预先准备的连接排将各柜连接在一起; 11.2 在开关柜内部连接所有需要接地的引线; 11.3 将已可靠接地的基础框架与接地排相连。 12. 随机文件清单 12.1 产品合格证 12.2 装箱单 12.3 产品出厂检验报告 12.4 安装使用说明书 12.5 开关柜联锁操作使用说明 12.6 随机备品备件及附件清单 12.7 一、二次接线图 12.8 基它相关资料
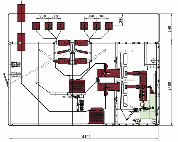
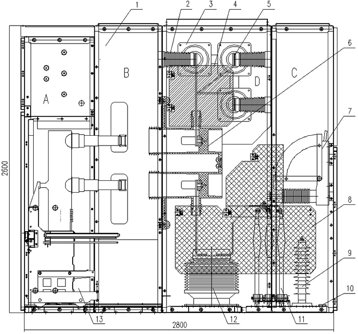
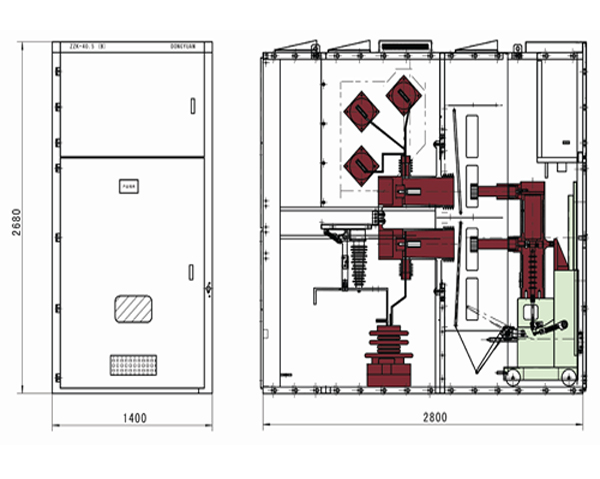
内部结构示意图
KYN61-40.5KV开关柜内部结构图