JYN1-40.5KV开关柜系三相交流50Hz单母系统的户内成套装置,作为接受和分配35kV的网络电路电能之用。 本型开关柜具有防止误操作断路器、防止带负荷推位手车、防止带电挂接地线、防止带接地线送电、防止误入带电间隔(简称“五防”)的功能。本开关柜可配ZN□-40.5双断口真空断路器和ZN23-40.5单断口真空断路器及其它断路器。
工作条件
1. 海拔高度不高于1000m。 2. 周围空气温度不高于+40℃,最低气温不低于于-15℃,日温差不大于15℃; 3. 相对湿度不超过90%(+25℃时) ; 4. 没有火灾、爆炸危险、严重污秽、化学腐蚀、及剧烈振动的场所。 注:环境条件超出以上规定者,用户与制造厂协商。
主接线方案图
主接线方案组合作用举例
产品结构说明
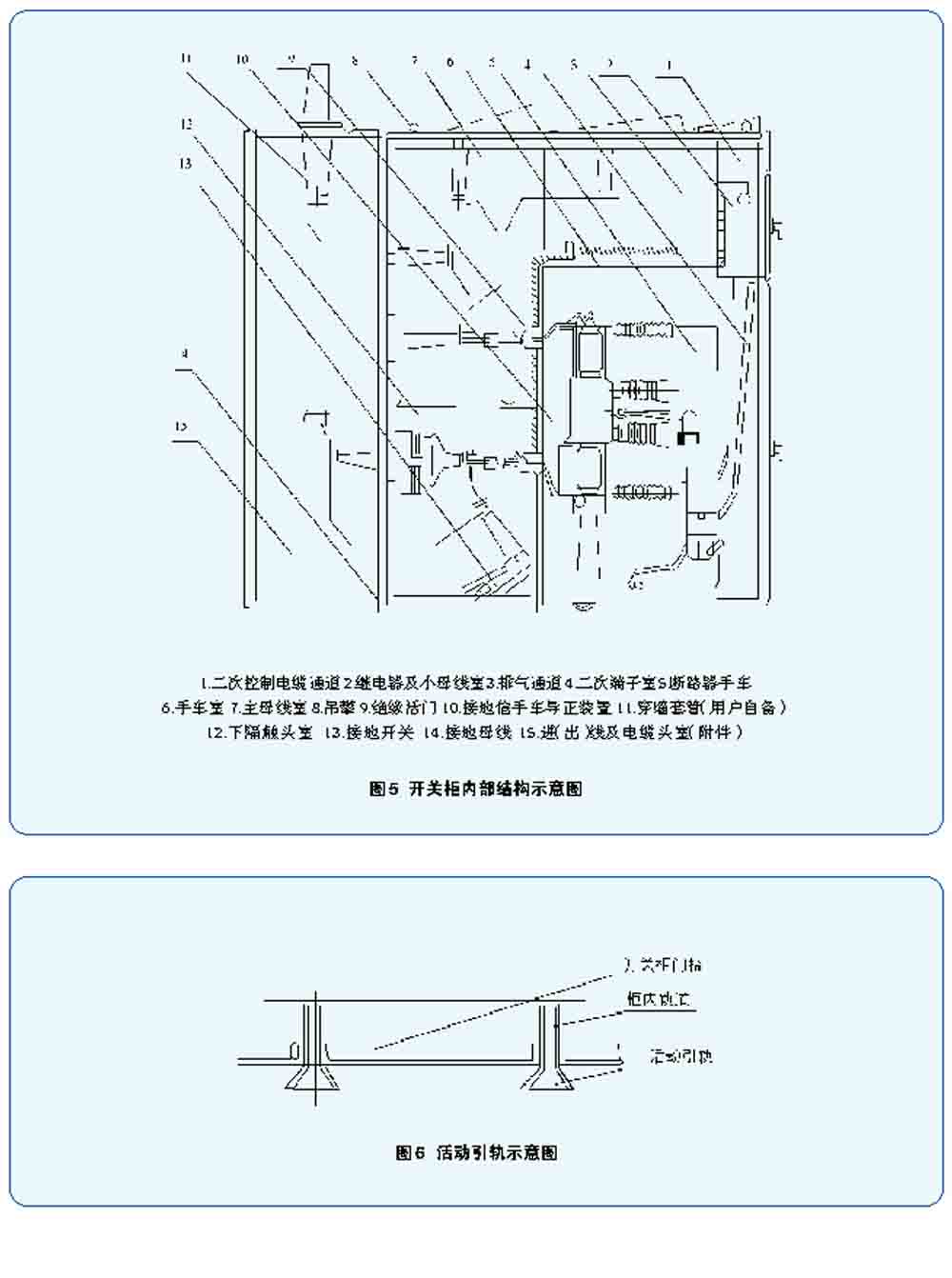
JYN1-35型开关柜系根据国家标准GB3906-2020和国际电工委员会IEC62271-200标准进行设计的。开关柜由柜体和手车两大部分组成。柜体为角钢板弯制焊接而成,并分割为手车室、母线室、电缆室、继电器室等。手车室与电缆室、母线室之间,隔以绝缘材料制成的隔板并在其上设有绝缘活门,其它各个室之间均以接地的金属板隔开,属于间隔型移开式开关柜。 手车按用途分为断路器手车、避雷器手车、“V”形接法电压互感器手车、“Y”形接法电压互感器手车、单相电压互感器手车、隔离手车和站用变压器手车等七种。 开关柜与断路器外形尺寸见图4。 开关柜系空气绝缘。能保证同类型同规格的手车具有互换性,但可限制不同类的手车推入。手车与柜体通过二次插头进行电气上的联锁。二次插头有24芯触点,其额定电流为15A。 开关柜内部结构参见图5。 现对开关柜结构按不同用途简述如下: 1. 外壳 开关柜的外壳具有IP2X的防护等级,能够防止手指或直径大于12mm的物体接近柜内带电部分和触及运动部。开关柜的地面属于外壳的一部分,因此用户在设计时(例如电缆沟)应考虑到防护等级的要求,必要时向制造厂询问。 2. 手车室 手车室设在柜前正中央,手车进入或退出时,小室大门可以关闭,小室底部中央设有手车导轨和接地装置。小室通向一次静触头的绝缘隔板是装有可随手车进出自动开启和关闭的绝缘活门,以策安全; 在手车轨道入口处设有两个可以上下翻动的活动引轨,见图6。 3. 主母线室 主母线室设在柜体上部,设有三相主母线、支撑绝缘子、静触头座或电流互感器、及上隔离触头盒等。 4. 电缆室 电缆室设在母线室的下部,与母线室之间有金属板相隔,它除供装设电流互感器、支撑绝缘子、触头座和下隔离触头盒之外,接地开关或联络母线亦设置在该室内。 5. 继电器室 在开关柜的正面上部,仪表室有效安装面积为2(高600×宽800)了;继电器室设有摇门,其有效安装面积为2(高550×宽650)。二次小母线及其专用端子组也设在该小室内。 6. 接地导体 横贯于开关柜的宽度方向上的铜质接地导体装设在开关柜的后下方。两台开关柜之间的连接采用不小于200mm2的铜质连接头,用螺栓搭接即可。接地导体两端备有M12螺栓,供与变电站内接地线连接用。 7. 手车识别装置 本装置机由装于手车左侧下方的3件挡块与装于柜内对应位置的2件柱销组成。它的作用是使不同类型的手车不能互换,同类型同规格的手车可以互换。各种手车的识别装置编码方式由制造厂根据用户所订开关柜手车类型而定。 8. 联锁 开关柜对操作程序性联锁作了充分的考虑,可以实现以下要求: a) 当断路器处于合闸状态时,手车不可能在工作位置或试验位置移动; b) 当手车在工作位置与试验位置之间时断路器不能合闸; c) 当接地开关处于合闸状态时,手车不能从试验位置推至工作位置; d) 当手车在工作位置或工作与试验位置之间时,接地开关不能进行合闸; e) 二次插头接通以前,手车不能从试验位置推至工作位置; f) 当手车需要拉出时,若二次插头插座未解开,则手车不能离开试验位置; g) 开关柜还设有周全的防止电气误操作装置。
订货须知
订货时请提供下列资料 1. 主接线方案编号,或主接线系统图; 2. 辅助回路原理图,端子图,如使用标准图集时请标明方案及控制回路电压。 3. 高压开关柜平面排列图; 4. 订货时务请注明是否需要可变设备,例如接地开关,带电监察,进出线小室,穿墙套管及加热器等。 5. 如需选用非标准主接线方案或另订备手车以及其他要求(如专用计量柜等),亦请在订货时提出,在有关订货手续中载明。
设备安装
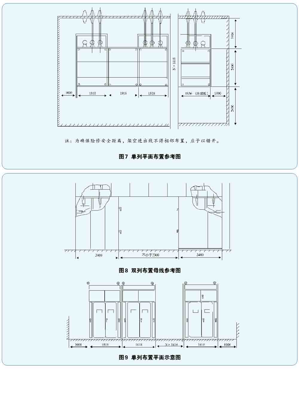
1. 场所 安装开关柜的场所应符合产品样本中规定的使用条件; 2. 安装及并柜 a) 开关柜为不靠墙安装,平面布置分为单列和双列布置两种,并设有母线桥,如图12-图13所示。并柜用紧固件已附在柜内有关安装孔上,并柜安装完毕后应将其紧固。 b) 开关柜安装时,手车之轨道不允许悬空,应紧贴地面。 c) 开关柜安装后,其前、膈、左、右不垂直偏差不得超过1.5/1000mm。 3. 主回路的引入及引出 开关柜主回路的引入采用架空和电缆两种形式,参见图7-图14所示,这两种形式的进(出)线均在开关柜后面加设的装配式小室敷设,该小室与开关柜后壁用螺栓连接,安装时参照图示进行。进出线之穿墙套管及电缆终端盒,由用户自备自装。 4. 基础形式 a) 安装开关柜的地面基础施工应符合“电力建设施工及验收技术规范”中的有关条款规定。为使手车推动轻便和减少尘埃,操作走廊以水磨石地面为佳。 b) 地面埋设槽钢及一、二次回路电缆沟的施工按图15。
电缆沟的施工按图