1适用范围
KYN18-10KV(8BK20)开关柜它适用于三相交流50Hz电力系统,用于接受和分配电能并对电路实行控制、保护及监测。
本产品符合标准:GB3906《3~35kV交流金属封闭开关设备》,GB/T11022《高压开关设备和控制设备标准的共用技术要求》,IEC60298《额定电压1kV以上50kV及以下交流金属封闭开关设备和控制设备》,DL/T404《户内交流高压开关柜订货技术条件》。
2型号含义
3结构特点
柜体为全组装式结构(见图1),柜车配合采用悬挂式中置结构(见图2)。根据用户需求可提供落地式手车方案。
可配装进口3AF、3AH等多种型号的真空断路器,及国家ZN28、ZN65、ZN12系列真空断路器。
可以与KYN18-10(F-C)并列布置。
该设备可以靠墙安装,柜前维护。
用机床加工精度保护柜车装配质量,手车互换性极好。
融推进、联锁于一个传动系统,互锁可靠,操作极为简单。
所有设备的操作,包括手车在柜内的移动均在柜门关闭状态下进行。
各小室均铠装隔离并接地,防护等级为IP3X。
高压室内的真空断路器及其配套的操作机构仅需少量维护。
电缆室可提供充裕的空间用来制作电缆头。
4柜体为全组装式结构图
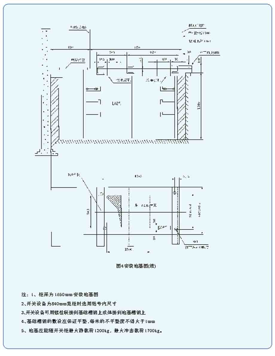
5外形尺寸
6主电路方案图
7订货须知
订货时应提供下列资料:
9.1 主电路方案图,平面布置图。
9.2 二次原理图,端子排列图,若无端子排列图时按制造厂家端子排列图。
9.3 开关设备的电器元件的型号、规格、数量。
9.4 需要母线桥(两列柜间母线桥和墙柜间母线桥)时需提供跨距和高度尺寸。
9.5 开关设备使用在特殊环境时应在订货时提出。
9.6 需要其它或超出规定附件应时提出种类和数量。