型号:N58(ZN85B)-40.5/1250-31.5固封式真空断路器 极数:3P 额定频率:50(Hz) 额定绝缘电压:95000(V) 灭弧方式:真空断路器 机械寿命:30000(万次)
N58(ZN85B)-40.5固封式真空断路器
一.概述:
N58(ZN85B)-40.5ZN85B-40.5型户内真空断路器是在ZN85(3AV3)基础上,吸收VS1弹簧操作机构特点,结合国内运行实际设计并生产的新型断路器。本产品适用于额定电压40.5kV、三相交流50Hz的户内高压设备,可供工矿企业、发电厂及变电站作为电气设备的控制和保护,并适用于频繁操作的场所。
断路器采用灭弧室与操作机构前后布置的结构,有效地降低了断路器的深度;采用有机复合绝缘材料,在ZN85基础上增加触臂绝缘,设计更加紧凑,进一步减小了断路器的体积;主导电回路与真空灭弧室直接连接,使电气连接更加可靠。
二.标准
N58(ZN85B)-40.5KV真空断路器符合GB1984-2003、GB/T11022等相关标准
三.主要特点:
有齐备的防误操作联锁,确保了人员和设备的安全,操作方便,维护简单。
操作机构置于真空灭弧室前的机箱内,其操作性能与灭弧室开合性能更加吻合,减少了不必要的中间环节,使断路器性能更加可靠
断路器总体布局合理、美观、简洁。
采用改良的丝杠推进机构,省力、平稳、自锁性能好。
四.操动机构
N58(ZN85B)操作机构采用VS1相同形式的弹簧操作机构,具有结构相对简单、可靠成熟、寿命长、维护少等特点。
五.安装方式
N58(ZN85B)真空断路器在开关柜内的安装形式既可以是固定式,也可以是抽出式,具有良好的互换性。
该系列手车式断路器主要配1400mm KYN61中置式及KYN61B型落地柜,固定式断路器配XGN-40.5、GG1A-40.5及箱式变电站等。
六.N58(ZN85B)-40.5固封式真空断路器 使用条件:
6.1 周围空气温度:不超过40℃;日平均温度不超过35℃;最低周围空气温度为-25℃。
6.2 空气相对湿度:日平均值不大于95%,月平均值不大于90%;水蒸气压日平均值不大于2.2kPa;月平均值不大于1.8kPa;
6.3 海拔高度:不超过1000m;
6.4 周围没有明显地受到尘埃、烟、腐蚀性和/或可燃性气体、蒸汽或盐雾的污染;
6.5 来自开关设备和控制设备外部的振动或地动是可以忽略的;
6.6 在二次系统中感应电磁干扰的幅值不超过1.6kV。
七.N58(ZN85B)-40.5固封式真空断路器结构和工作原理:
可靠的模块化弹簧操动机构ZN□-40.5系列户内真空高压断路器的弹簧操动机构为上下布置的弹簧操动机构,具有手动储能和电动储能功能,整机的外形尺寸小,断路器的整体刚度好,操作性能始终一传动的的可靠性有上万台的生产、运行经验,断路器整机动作的稳定性、可靠性高。主导电回路采用套筒式结构形式ZN85B-40.5固封式户内高压真空断路器 的主导电回路为套筒式结构形式。
断路器的一次主导电回路的真空灭弧室布置在封闭的绝缘筒内,绝缘筒选用机电性能可靠的环氧树脂材料,并采用先进APG的工艺成型,该绝缘筒既起安装支撑作用,又起相间、相对地绝缘作用。该绝缘筒的设计充分考虑了国家标准及严酷工作条件的使用要求,不仅可以防止真空灭室不受外界环境的影响,防止灰尘和异物进入主回路的部分,而且可以确保即使在湿热及严重污秽的环境下,也可以对电压效应呈现出高阻态。标准的合分闸功能模块模块化设计弹簧操动机构是ZN□户内真空断路又一特色,弹簧操动机构包括合闸与分闸两大功能模块,它具有维护方便,更换快捷,停电栓修时间短的特点,另外,由于用作备品备件的合分闸功能模块均已经经专用油脂润滑和调整且具有很长的保存期,因而合分闸模块更换之后无需对整个断路器的操动机构进行再调整,而不会改变断路动态特性,使行维护检修要作减轻到***小。故障的合分闸模块经制造厂维修和重新保养之后还可以作为备品备件。
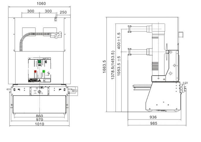
N58(ZN85B)-40.5固封式户内高压真空断路器 的手车式外形尺寸与ZN85-40.5手车式真空断路器小,可实现手车之间的方便互换,从而其适应性强、适用范围广。N58(ZN85B)-40.5固封式户内高压真空断路器 采用落地式结构设计和中置式结构设计,中置式配转运小车,可以方便用户进行现场的检修和定期维护,N58(ZN85B)-40.5固封式户内高压真空断路适配柜型为KYN61-40.5高压成套开关柜。
主导电回路采用套筒式或固封式结构N58(ZN85B)-40.5固封式户内高压真空断路器的主导电回路有套筒式和固封式两种结构形式可供用户根据不同的使用场所进行方便地选择。套筒式结构:断路器的一次主导电回路的真空灭弧室布置在封闭的绝缘筒内,绝缘筒选用机电性能可靠的环氧树脂材料,并采用先进APG的工艺成型,该绝缘筒既起安装支撑作用,又起相间、相对地绝缘作用。该绝缘筒的设计充分考虑了国家标准及严酷工作条件的使用要求,不仅可以防止真空灭室不受外界环境的影响,防止灰尘和异物进入主回路的部分,而且可以确保即使在湿热及严重污秽的环境下,也可以对电压效应呈现出高阻态。
N58(ZN85B)-40.5固封式户内高压真空断路器 的一次导电回路采用固体绝缘技术的固封极柱,该固封极柱通过先进的自动压力凝APG工艺将真空灭弧室和一次导电回路的其它零件直接固封在特种环氧树脂材料里,形成一个主导电回路模块。固封极柱安装端进行了内外双裙边的设计,该极柱具有大爬电比距、高机械强度、高零部件精度、零部件数量少、无需二次调整、搭接面少的特点。极柱电场分布均匀,避免了局部电场集中对有机绝缘的破坏。同时采用此种结构设计,可大大地筒化一次主导电回路的装配工艺,彻底避免了主导电回路连接螺栓由于运行中的振动而松动的问题,保证了主导电回路电联结的高可靠性,使断路器的一次主导电回路的实现免维护成为可能。
灵活的安装方式N58(ZN85B)-40.5固封式户内高压真空断路器 具有固定式和手车式两种安装方式,均可以十分方便地实现可靠的机械“五防联锁”。既可直接安装在各类型的固定式开关柜内。亦可配装在各类型可移开式开关柜的手车。
主要技术参数
序号
项目
单位
参 数
1
额定电压
kV
40.5
3
额定绝缘水平
1min 工频耐压
42
额定雷电冲击耐压
kA
75
额定电流
1250 1600
4
额定频率
A
50
5
额定短时耐受电流
Hz
25 31.5
6
额定峰值耐受电流
63 80
7
额定短路开断电流
8
额定短路关合电流(峰值)
9
额定短路持续时间
10
额定操作顺序
分-0.3s-合分-180s-合分
11
开断时间
ms
<80
12
额定短路开断电流开断次数
次
20
13
额定电容器组开断电流
630
14
机械寿命
10000
15
额定操作电压
V
-110/~110,-220/~220
外形尺寸