1功能及特点
1.高压开关设备、变压器、低压开关设备三位一体,成套性强;
2.高、低压保护完善,运行安全可靠,维护简单;
3.占地少、投资省、生产周期短、移动方便;
4.接线方案灵活多样;
5.结构独特:独特蜂窝式结构双层(复合板)外壳牢固,隔热又散热通风、操作简便、美观、防护等级高,外壳材料有不锈钢钛合金、铝合金、冷轧板、彩钢板可选;
6.型式多样:通用型、别墅型、紧凑型等多种样式;
7.高压环网柜内可装配网自动化终端(FTU)实现短路及单相接地故障的可靠检测具备“四遥”功能,便于配网自动化升级
2用途
广泛用于城市电网改造、住宅小区、高层建筑、工矿、宾馆、商场、机场、铁路、油田、码头、高速公路以及临时性用电设施等户内外场所。
3高压侧
高压侧
预装式变电站高压一般采用负荷开关——熔断器组合电器保护,熔断器—相熔断后,三相联动脱扣,负荷开关有产气式、压气式、真空、六氟化硫等型式可选,可配电动操作机构,实现自动化升级;熔断器为高压限流熔断器,带撞击器,动作可靠,开断容量大,主要技术参数见下表。对于800kV以上的变压器,可选用ZN12,ZN28,VS1等真空断路器保护。
低压侧
低压侧主开关采用万能式或智能型断路器,选择性保护;出线开关选用新型塑壳式开关体积小、飞弧短,最多可达30回;智能型自动跟踪无功补偿装置,有接触器和无触点两种投切方式供用户选用。
变压器
预装式变电站选用低损耗、油浸式、全密封S9、S10、S11系列变压器,也可选用树脂绝缘或NOMEX纸绝缘环保型干式变压器,底部均配有小车,变压器可方便地进出。
4执行标准
本产品符合下列标准:
GB/T17467-1998《高压/低压预装式变电站》
DL/T537-93《6-35kV箱式变电站订货技术条件》
5高压熔断器技术参数
6外形及安装尺寸
7FN12-12D/630-20户内高压压气负荷开关
8机械特征参数
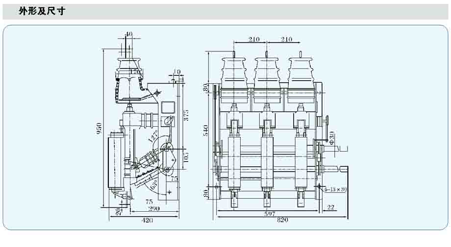
9外形及尺寸
10外形及安装尺寸
11一次方案图
一次方案图
变电站高压侧一次方案参见附1,低压侧一次方案参见附2。
典型方案示例图
典型方案示例图参见附3。
平面布置图
变电站平面布置参见附4,用户可根据需要选用。
基础图
变电站基础图参见附5。
12安装、使用与维修
预装式变电站在安装、验收、交接性试验、试车、运行与维护等方面除应遵守电力部门要求执行的各项规定外,还注意以下事项:
A、用户收货时应按有关规定仔细检查,对于不马上安装的产品,应按正常使用条件规定,存放于适当的场所。
B、产品应采用专用吊具底部吊起,如图3。
C、 产品水平安放在事先做好的基础上,然后将产品底座与基础之间的缝隙用水泥沙浆抹封,以免雨水进入电缆室,通过高、低压室的底封板接入高、低压电缆。
D、 产品安装就位后应做好可靠接地;电站底座槽负钢上的两个主接地端子、变压器中性点及外壳、避雷器下桩头等均应分别由安装部门接地。所有接地应共用一组接地装置,其接地电阻应酬小于4欧姆,从接地网引至产品的接地引线应不少于两条。
E、产品在安装完毕或维修后,投运前应进行如下项目的检验和试验:
(1)变电站内是否清洁;
(2)操作机构是否灵活;
(3)主要电器的通断是否灵活可靠;
(4)电器辅助触的通断是否可靠准确;
(5)表计及继电器动作是否准确无误;
(6)仪表及互感器的变比及接线极性是否正确;
(7)所有电器安装螺母是否拧紧,安装是否牢固可靠;
(8)母线连接是否良好,其支持绝缘子,夹件是否安装可靠;
(9)电器的整定值是否符合要求,熔断器熔芯规格是否正确;
(10)主电路及辅助电路的接点是否符合电气原理图要求。
F、 维修
(1) 产品中所有元件按各自的技术要求维护;
(2)若选用的变压器为油浸式,每年应按规定至少进行一次油样分析检查;
(3)运行中的高压侧开关设备,经20次带负荷或2000次无负荷分合闸操作后,应检查触头情况和灭弧装置的损耗程度,发现异常应及时检修或更换;
(4)低压开关设备自动跳闸后,应检查分析跳闸原因,待排除故障后,方能重新投运;
(5)避雷器每年应在雷雨季节到来之前进行一次预防性试验;
产品附有装箱单、合格证、安装使用说明书、电气接线图和本产品所采用的主要元件设备的说明书,钥匙操作工具以及根据协议书提供的备品备件。
13高压典型方案
14低压典型方案
15终端型方案
16网型方案
17计型方案
18变电站平面布置图