ZGS11.ZGS13美式变电站,该产品作为电缆化配电网中重要的供电单元,集高压控制、保护、变电,以及配电设备于一体的成套预装产品,广泛应用于城乡配电网之中。 该产品将高压负荷开关、高压熔断器置于变压器油中,具有与变压器器身共箱或分箱两种结构形式。油箱采用全密封结构,配有油温表、油位表、压力表、压力释放阀、放油阀等元件以监测变压器运行状况。该产品分为环网型、终端型及双电源型供电方式。为了使此种产品更适合于我国电网的实际要求,本公司又推出了插拔型干式熔断器,熔丝的熔断不影响变压器油的性能。根据低压馈出要求的复杂程度,NJYB27型产品分为标准型、加强型和综合型三种外壳形式,使用户和设计单位在选型时,做到更灵活、更经济。
1型号及其含义
2使用环境
环境温度:最高气温+40℃,最低气温-30℃;
海拔:≤1000m;
风速:相当34m/s(不大于700Pa);
温度:日相对湿度平均值不大于95%,
月平均湿度平均值不大于95%;
防震:水平加速不大于0.4m/S2,垂直加速度不大于0.15m/S2;
安装地点倾斜度:不大于3°;
安装环境:周围空气不受腐蚀性,可燃性气体等明显污染,安装地点无剧烈震动;
订货本产品超出上述条件的规定时,可与本公司协商。
3主回路方案图
4外形尺寸图
5YB27标准型外形尺寸
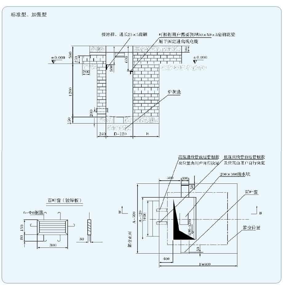
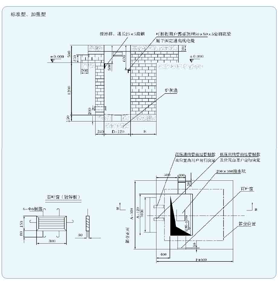
6标准型、加强型图
7标准型、加强型基础施工要求
基础施力要求100kPa以上。
基础设在地势较高处,四周向外排水,采用红砖水泥浆砌筑,内外墙壁用1:2水泥砂浆抹20mm厚,掺3%防水剂。
电缆室底面需向集水管侧略有倾斜,以免积水。
百叶窗里侧加焊150×300的钢板网(10×20)菱形眼,百叶窗外框焊筋爪埋入墙内。
基础施工应符合JGJ16-83《建筑电气设计技术规程》有关规定。
接地干线及接地极的做法仍按常规作,接地干线从电缆沟引出后可沿环网柜四周布置,也可从一方延伸布置接地极,接地电阻要求≤4Ω。
图中尺寸为推荐值。
为进线方便用户可根据现场实际情况在三个或四个方向设备电缆井。
8综合型图
9综合型基础施工要求
底板在原土层上,如果不是原土层,应采取措施以夯实原土层。
10订货须知
用户如订货需要提供以下资料:
1.型号、容量、数量、颜色。
2.是标准产品,还是非标准产品(凡不符合耐吉电气提供的高、低压电气方案图的产品,均视为非标产品)。
3.变压器性能型号,联结组别,分接范围
4.环网或终端,采用电缆头种类,进线电缆型号截面,是否带避雷器,是否带故障指示器和带电指示器。
5.低压方案号,低压断路器型号、规格。要求如为低压计量,是否为单独密封,低压互感器型号和精度要求,有功表、无功表、无功表或综合测试仪、电子表型号规格要求。