型号含义
技术数据及方案
GG-1A(F)(Z)型高压开关柜技术参数见表2; 一般闭锁主回路方案见表3-1。一般闭锁不考虑21-22、25-28、31-33和37-39主回路方案,同时也不考虑断路器配用CS2型操动机构方案; 简易闭锁的主回路方案见表3-2。
使用、维护说明
1.合闸(送电): a.关好柜门,将模拟板上“红绿命令牌”与操作柜对应调换插入后,合上隔离开关(有程序锁进,还需操作相应的程序锁); b转动控制开关或按动按钮使断路器合闸,(如采用手力操动机构时则推合断路器); c.将换下的“红绿命令牌”插回到模拟板上。 2. 分闸(停电): a. 将模拟板上“红绿命令牌”与操作柜对应调换插入后,转动控制开关或按动按钮,使断路器分闸(如用手动操动机构时,则拉开断路器); b.拉开隔离开关(有程序锁时,需操作相应的程序锁); c.将换下的“命令牌”插回到模拟板上。 3. 维护: a.主母线或进线电缆带电时,可检修断路器; 当该柜开关全部断开后,油断路器室对带电部分是完全隔开的。并且GG-1A(F)Ⅰ型柜装有固定式接地开关,GG-1A(F)Ⅱ型柜装有接地桩端,所以断路器两端均可接地,故可安全地进入断路器室进行断路器、互感器、母排接点等部位的检修。 b. 主电路不停电,可检修控制回路: 该柜的继电器室,端子室在结构方面已考虑到对内带电部分的安全隔离,故可进行拆装配线操作。 4. 各种操作均需按相应规程进行。 5. 维护要点: 5.1 母线及电器各接触点: a. 定期(约一年)检查各接触点,拧紧螺栓保持接触压力。并重新处理温度过高的接触点。 b. 短路电流通过后,要打开所有接点检查,对有熔焊现象者要重新处理。 c. 经常保持触点温度不超过如下数值:铜与铜接触:90℃,铝与铜或铝接触:70℃。 5.2 油断路器: a.满容量开断后,按照断路器使用说明书拆开检修。 b.视操作频率分合电流情况,定期对断路器动、静触头进行检查。 c.经常注意面高度,当油面低于油标线时需加油。 5.3 负荷开关:断开两次额定电流或一次超过开关额电流之短路,即应拆下灭弧室检修。 5.4 二次回路: a.继电器经定期整定后,不得任意开盖检查。 b.定期(约一年)拧紧各个接点螺钉、螺母。 5.5 传动部分: a. 要经常保护操动机械传动系统的灵活准确。 b.转动部分定期加油。 c.定期(约一年)检查各处销钉有无不正常现象。并更换已被剪切变形的销钉。) 5.6 程序锁:不经常操动的开关柜,其程序锁要定期(约半年)操作几次,以免锈死。 5.5.7 各种电气原件的检修,应遵守各自的安装使用要求进行。
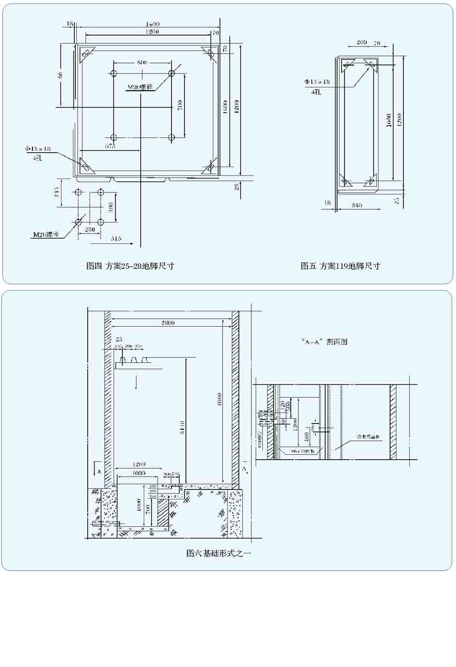
安装
产品开箱等待安装时,应放置在清洁干燥的房间内,安装时参照图三-图十一制造地基。安装步骤如下: 1.开关柜固定在基础槽钢上,可用M12地脚螺钉也可采用焊接。 2.开关柜间用M12螺栓联接。 3. 安装主母线:安装前应检查接触面必须平整,清洁无氧化膜。母线及柜内各电气接点在投入运行前均需将螺栓再紧一遍。 4. 安装电缆:电缆固定在柜底角钢上,按相应规程封端后,将线芯连于电器出线端上。电缆根数超过两根时,应加分线板。 5. 安装架空出线:用铝排从后柜上部经母支瓷瓶与出线侧隔离的出线端连接好,铝排的另一端与墙上穿墙套管联接即可。 6. 柜体接地:将接地线接在地端子室内侧下部的接地线螺钉上或当柜体焊接于基础槽钢上,将接地连接于基础槽钢上。 7. 按油断路器安装使用说明书对断路器注油及进行必要的调试工作。 8. 各传动系统动作要求准确无误,各转动部位均应涂以润滑油。 9. 检查各电器安装正确无误后,对整个二次回路进行试验。
订货须知
备品备件 订货时双方协商确定。 订货须知 1. 订货时,订货方应提供下列资料: a. 一次线路方案及排列系统图; b. 配电室平面布置图; c. 二次回路原理图;(也可按制造厂二次线路标准方案); d.柜内所装各种电器设备详细的规格、数量; e.母线规格可由订货方提供出或按制造厂供给。 2. 除以上在订货时由订货方提供完备之外,还应在图中注明: a.所订高压柜是GG-1A(F)Ⅱ型; b.出线方式(架空出线或电缆出线); c.是否安装旁路母线。 如无说明,均按GG-1A(F)Ⅱ型电缆出线,靠墙安装供货。
程序锁操作说明
(仅以07D方案为例,其它方案以此为参考): 如图:方案为:GG-1A(F)Ⅰ-07D。 图中“Θ ”表示有钥匙,“O”为无钥匙。 1. 停电操作: a. 按照运行指令,在模拟上进行模拟操作后,取下模拟板上302红标牌。 b. 到302开关柜前,将控制开关把手上的红标牌取下,与模拟板标牌互换(变为绿色),操动手柄分闸、取出手柄中心钥匙。(如果标牌没有互换,控制开关手柄就不能操作,其中心处钥匙也就无法取出,继而下一步也就无法操作隔离开关)。 c. 将钥匙插入3023隔离开关操锁头中,按箭头方向扭动钥匙,操动手柄,拉开3023隔离开关。 d. 扭动3021隔离手操锁头中钥匙,拉开3021隔离开关,取出钥匙。(由于机械闭锁的作用,只有先拉开3023,然后才能拉开3021)。 e. 前门联锁机构因3021隔离已经拉开而解除,前门可以打开。 f. 将钥匙插入后门(H)送取锁芯中,按箭头方向扭动钥匙打开后柜门,钥匙闭锁在后柜上。 g. 将从控制开关换下的标牌插入模拟板上。至此,停电操作完毕。 2. 检修时油断路器的分合试验。 a.关上后柜门,取出钥匙。(门不关好,钥匙取出)。 b.将钥匙插入控制开关中心锁中,作分合闸试验。 3. 送电操作: a.按指令在模拟板上进行模拟操作后,取下302绿标牌。 b.到后门处,关上后门取出钥匙,(如果后门钥匙在做分合闸试验时插在控制开关中未取出,应到控制开关处分闸后取出钥匙)。 c.到302前柜门处将前门关好。 d.把后门取出的钥匙插入3021隔离手操锁中扭动,操作手操机构使隔离合闸,钥匙被闭锁(如果前门未关好,则3021隔离合不上)。 e.扭动3023隔离手操锁中钥匙,把隔离合上,取出钥匙。(由于机械闭锁的作用,如果3021未合上,则3023也同样合不上。 f.到302控制开关处互换标牌,使之变为红色,再把钥匙插入手柄中心锁孔中操动手柄合闸。 g.将换下的标牌插到模拟板上变为红色。至此,全部送电操作完毕。
GG-1A(F)1-05-08总装配
GG-1A(F)1-125-126 方案总装配
一般闭锁的主回路方案表