网站首页
关于公司
新闻动态
公司产品
市场营销
人才招聘
工艺展示
联系我们
产品信息
高低压开关柜
40.5KV高压开关柜
24KV高压开关柜
3-12KV高压开关柜
低压开关柜
XH消弧消谐柜及电容补偿柜
动力箱配电箱
真空断路器、隔离手车、PT手车、计量手车、熔断器手车
VHL(VS1)-24KV真空断路器
40.5KV真空断路器
12KV真空断路器
ZN□-27.5kV系列户内电气化铁道真空断路器
VHL(ZN85)-40.5kV PT车、隔离手车、熔断器手车、避雷器手车
VSL(VS1)-12kV PT车、避雷器车、隔离车、计量车、熔断器车
开闭所、箱变及电缆分接箱
开闭所
箱变
电缆分接箱
新能源系列产品
光伏发电系列产品
充电桩
新式小型化开关柜及接地电阻柜
接地电阻柜
新式小型化开关柜
BXM(D)防爆防尘配电箱
BXM(D)防爆防尘配电箱
XHD消弧线圈及接地变成套装置
XHD消弧线圈及接地变成套装置
工艺展示
你的位置:
首页
>
产品信息
>
真空断路器、隔离手车、PT手车、计量手车、熔断器手车
>
12KV真空断路器
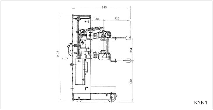
KYN1-12kV手车式真空断路器
更新:2020-09-19 09:51:36 点击:
品牌:
型号:
产品介绍
一、KYN1-12高压真空断路器产品概述
KYN1-12、JYN2-12系列交流铠装式移开式金属封闭高压开关柜,适用于三相交流50Hz,额定电压为3.6-12VK,额定电流为630-2500A的单母线电力系统中,作为发电厂、变电站(所)及工矿企业接受和分配电能的设备使用。
手车是本开关既能安装ZN28-12型真空断路器,底部装有四只滚轮,能沿水平方向移动,还装有接地触头导向装置、锁定机构及手车进出手摇机构装置,也能视用户使用要求,安装SN10-10型少油断路器,操作方式,可配用CD型电磁机构,也可配用CT型弹簧操作机构。手车有断路器手车、电压互感器手车、电压互感避雷器手车、所有变器手车、隔离手车及接地手车及接地手车七种。配合柜宽为840mm、1000mm等各种开关柜。
本柜的各项主要技术性能招标,均符合GB3906-35KV《交流金属封闭开关设备》标准要求。
二、KYN12高压真空断路器型号及含义
1、KYN12高压真空断路器的主要型号
KYN1-12/630-20 KYN1-12/630-25 KYN1-12/630-31.5
KYN1-12/1000-20 KYN1-12/1000-25 KYN1-12/1000-31.5
KYN1-12/1250-20 KYN1-12/1250-25 KYN1-12/1250-31.5 KYN1-12/1250-40
KYN1-12/2000-31.5 KYN1-12/2000-40
KYN1-12/3150-40
KYN1-12/4000-40
注:12KV,40.5KV这是额定电压。我们平常提到的10KV,35KV都是系统线电压。
2、KYN12高压真空断路器的型号含义
K 铠装式
Y 移开式
N 户内
1 产品设计序号
12 额定电压(KV)
Z 真空断路器
630 额定电流(A)
20 开断电流(A)
例如:KYN1-12/630-20,说明这是一台KYN1型户内交流铠装式移开式金属封闭高压开关柜;其额定电压为12KV;额定电流为630A;开断电流为20KV。
三、KYN12高压真空断路器工作原理
本产品的结构由前柜、后柜、继电器仪表箱、手车及泄压装置(上盖)五大部分组成。前柜、后柜及泄压装置用螺栓联接,继电器仪表箱与前柜通过减震器联接。前柜分为两个部分,手车室和二次端子室。后柜分为两个部分,电缆室和主回路母线室。以上各部分用钢板分隔焊接而成。适应架空进出线,电缆进出线,左右联络,能以极少数的柜体组成配电成套装置,以满足不同的使用要求。本产品可根据需要附有标准的进母线桥及两列柜间跨接母线桥。
1、前柜
前柜由二次端子室和手车室三部分组成。端子室装有可开启的小门,可安装转换开关等控制回路元件。手车室顶部装有泄压装置(上盖),若内部出现闪络等事故,产生高压气体时,泄压上盖可掀开,以防止事故的扩大。
二次静触头及防护机构装于手车室顶部,二次动触头装在手车顶部,随着手车的进入,二次动触头可自行对正,保证控制回路接通或断开。
前柜底板装有接地触头及手车识别销、限位结构,底板左侧开有二次回路电缆进出线孔,二次电缆经此孔进入端子室、仪表箱。右侧装有接地开关操作轴,并与后盖及手车联锁。前柜后部装有接地的金属活门,防止了误入带电间隔。左、右两侧板上装有活门提升机构及手车定位装置。
2、后柜
后柜分为母线室和电缆室,后柜顶部装有与前柜相同作用的泄压装置,母线室左侧板装有三个绝缘套管,母线穿过绝缘套管,且与绝缘套管很好的配合,有利于防止事故的扩大。主回路母线的最大截面为2×(10×100)m㎡双层母线,母线室可装三个带有一次静触头的环氧树脂或SMC材料压制的触头盒及支持绝缘子。电缆室可装三个触头盒或电流互感器式触头盒。接地开关安装在电流互感器或触头盒下端,底部装有接地母线,使设备可靠接地。一次电缆可由底部进出。下盖板上设有观察窗,便于观察设备运行情况。柜内支持绝缘子可根据用户需要选用可抽取电压信号的传感器式绝缘子。
3、继电器仪表箱
继电器仪表箱通过四个减震器安装在前柜端子室的上部,防止了继电器因震动而产生误动作。仪表箱上装有可开启的面板,箱内装有网门,面板和网门上可布置二次元件,接线与检修方便、安全。继电器仪表箱上部可根据用户要求增设15个回路的小母线端子。
4、手车
手车用钢板弯制焊接而成,底部装有接地触装置,手车在工作位置时可靠接地。手车摇进到工作位置后,手车面板将手车室与外界隔开,手车室就不再设手车室门。手车面板上部装有观察窗,车内装有照明灯,以便观察断路器等设备运行情况,面板中部装有手车位置指示手柄及机械联装置,具有将手车锁紧在工作位置,试验位置及断开位置的功能。并同时有本手车的机械电气联锁功能。面板上还设有紧急分闸按钮及分、合闸位置指示牌。还可根据用户需要装设计数器。手车中部装有一套蜗轮蜗杆式推进机构,使手车在柜内的移动平稳省力。面板上装有一次线路模拟图及手车进出操作说明。
手车柜内根据用户要求还可增加行程开关、加热器等元件。
5、联锁
为保证设备安全可靠运行,本产品装有机械电气联锁装置,完全满足“五防”要求,即能够:
a、防止误分、误合断路器;
b、防止带负荷抽、插一次隔离触头;
c、防止带电合接地开关;
d、防止接地开关未打开前合断路器;
e、防止误入带电间隔。
f、端子室或仪表箱门上可装有带程序锁功能的转换开关(由用户选用),可防止误分、误合断路器;
g、面板中部的指示手柄,只有在断路器处于分闸状态时,才能转至进出位置,此时手车可推进柜内或退出柜个,防止带负荷抽插一次隔离触头;
h、断路器与接地开关的机构联锁,只有手车退出柜体时,端子室门上的带电显示装置的指示灯熄灭后,才能使用专用工具将接地开关合闸。手车在工作位置时,接地开关操作轴孔被手车面板挡住,接地开关不能合闸,实现了防止带电合接地开关;
接地开关合闸后,手车被挡块阻挡不能进入试验位置、工作位置,防止了接地开关未打开前合断路器;
i、后柜配有可拆卸的上、下盖板,下盖板上装有与接地开关联锁的装置,只有在手车抽出且接地开关合闸后,后下盖板才能拆卸。上、下盖板联锁只能先拆下盖板,后拆上盖板。装配时只能先装后上盖板,再装后下盖板,这时接地开关才能分闸,防止了误入带电间隔。
j、各柜间可根据用户需要,增加机构联锁及电气联锁。
6、操作程序
a、停电检修
当产品处于运行状态时,按下列操作程序停电检修:
(1)接到此产品停电的指令后,操动(带程序锁)转换开关或分闸按钮,使断路器分闸;
(2)把位置指示手柄从工作位置转至进出位置,按指示方向操作推进机构,将手车抽出。如手车带有机械联锁就需将手车面板上机械联锁装置中的钥匙转至分闸位置,推出手车。此时,可将机电械锁装置中的钥匙取下,去操动其它产品,以解除柜间闭锁;
(3)手车抽出柜体,在电压监视装置的三个指示灯熄灭后,此时插入接地开关操作杆,套上专用操作手柄按柜前右下角指示牌的指示方向转动,使接地开关合闸;
(4)先拆下后下盖板,再拆后上盖板,此时,全部操作完毕,产品处于停电检修状态。
b、送电
当产品处于停电检修完毕状态后,按下列操作程序送电:
(1)先装产品的后上盖,再装后下盖;
(2)插入接地开关操作杆,套上专用操作手柄,按前柜右下角指示牌的指示方向转动,使接地开关分闸;
(3)按手车面板上的位置指示手柄转至进出位置,将手车推入柜内,按指示方向操作推进机构,将手车推到试验位置,转动指示手柄将手车锁定;
(4)操动带程序锁的转换开关或合闸按钮,使断路器合闸,认定其性能合格为止;
(5)接到本产品送电的指令时,应先将转换开关转到分闸位置,转动位置指示手柄至进出位置,操作推进机构,将手车推到工作位置并锁定。操动转换开关或合闸按钮,使断路器合闸。此时,全部送电操作程序完毕,本产品处于运行状态。
四、KYN1-12高压真空断路器主要技术参数
1、KYN1-12技术参数表
序号
项 目
单 位
数 据
20KA
25KA
31.5KA
40KA
1
额定电压
KV
12
2
额定电流
A
630 1250
1000
630 1250
2000
1250.2000
3150.4000
3
额定短路开断电流
KA
20
25
31.5
40
4
额定短路关合电流(峰值)
KA
50
63
80
100
5
额定峰值耐受电流
KA
50
63
80
100
6
4S额定短路耐受电流
KA
20
25
31.5
40
7
额定绝缘水平
工频耐压(额定开断前后)
KV
42
冲击耐压(额定开断前后)
75
8
额定操作顺序
分-0.3S-合分-180S-合分
9
机械寿命
次
10000
10
额定短路开断电流开断次数
次
30
20
11
触头开距
mm
11±1
12
超行程(触并没有弹簧压缩长度)
mm
4±1
13
三相分、合闸三不同期性
ms
≤2
14
触头合闸弹跳时间
ms
≤2
15
平均分闸速度(刚分6mm)
m/s
1.1±0.2
16
平均合闸速度
m/s
0.6±0.2
17
分闸
时间
最高操作电压下
s
≤0.06
最低操作电压下
≤0.08
18
合闸时间
s
≤0.2
19
各相主回路电阻
μ欧姆
≤50
≤40
20
动静触头允许磨损累积厚度
mm
3
21
油缓冲器缓冲行程
mm
100-2
首页
电话
邮件
产品
留言